main image

CAD Library

Our comprehensive suite of CAD details are freely available for download in either .dwg or .pdf format. 

Preview the thumbnails in each category and download individual files as required or simply download the full set. 

Complete Vertical over Cavity (VOC) Set
ALL PDF
VOC-001 Batten layout for vertical cladding over drained & vented cavity
VOC-002 Timber cavity batten to timber frame
VOC-003 Timber cavity batten to steel frame
VOC-004 AliBat to timber frame
VOC-005 Base channel fixing
VOC-006 Base channel over timber floor
VOC-007 Base channel over waterproof deck
VOC-007b Base channel over concrete slab
VOC-008 Fabricated 90deg base channel corner
VOC-009 Exploded 3D corner using NC107,NC109
VOC-010 Typical external 90deg. corner
VOC-011 Ext 90deg corner- box assembly
VOC-012 Ext 90deg corner- negative detail
VOC-013 Internal 90deg corner
VOC-014 Internal 90deg corner - negative detail
VOC-015 Typical inter storey or horizontal joint
VOC-016 Typical sill NC247 + NC248 assembly
VOC-017 Typical jamb NC247 + NC248 assembly
VOC-018 Typical jamb - negative detail filler
VOC-019 Typical head section
VOC-020 Soaker installation to window jamb
VOC-021 Typical head flashing end detail
VOC-022 Typical soffit trim
VOC-022b Typical raking soffit
VOC-022c Typical inverse raking soffit
VOC-023 Typical pipe penetration
VOC-023b Typical large pipe penetration
VOC-024 Typical apron, roof to wall junction
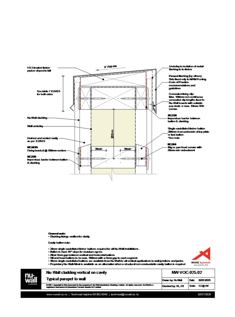
VOC-025 Typical parapet to wall
VOC-026 Typical deck to wall junction
VOC-027 Typical roof and gutter to wall junction
VOC-028 Notching board around window jamb
VOC-029 Ripped board to end of wall
VOC-030 NW to fascia and soffit option A
VOC-030b NW to fascia and soffit option B
VOC-031 NW to fascia, soffit, wall with option
VOC-032 Garage door head, jamb -timber reveal
VOC-032b Garage door head, jamb-NW reveal
VOC-033 NW to brick internal corner
VOC-034 NW to brick external corner
VOC-035 NW to brick horizontal junction
VOC-036 NW to brick vertical junction
VOC-037 NW to concrete masonry vertical junction
VOC-038 NW to concrete masonry ext. corner
VOC-039 NW to concrete masonry int. corner
VOC-040 Typical irregular ext corner
VOC-041 Typical irregular int corner
VOC-042 Typical irregular internal flashings
VOC-043 Vertical Join - Mixed cladding
VOC-043b Typical vertical join using NC105X-NC103
Complete Horizontal over Cavity (HOC) Set
ALL PDF
HOC-001 Cavity batten layout
HOC-002 Typical timber batten installation to timber frame
HOC-003 Typical timber batten to steel frame
HOC-004 AliBat to timber frame
HOC-005 Typical base channel fixing
HOC-006 Typical base channel over timber floor
HOC-007 Typical base channel over deck
HOC-007b Typical base channel over concrete slab
HOC-008 Pre fabricated external corner
HOC-009 Exploded 3D corner using NC107X,109X
HOC-010 Typical vertical joint
HOC-010b Typical vertical joint - Mixed Claddings
HOC-011 Typical 90° external corner
HOC-012 External 90° corner using NC 521 box
HOC-013 Typical internal 90° corner
HOC-014 Typical inter storey horizontal joint
HOC-015 Typical sill section
HOC-016 Typical jamb section
HOC-017 Typical head section- full board
HOC-018 Typical head section - notched board
HOC-019 Soaker installation
HOC-020 Typical head flashing end detail
HOC-021 Typical soffit trim
HOC-021b Typical raking soffit
HOC-021c Typical inverse raking soffit
HOC-022 Typical pipe penetration
HOC-022b Typical large pipe penetration with cowl
HOC-023 Typical roof apron junction
HOC-024 Typical parapet junction
HOC-025 Typical deck to wall junction
HOC-026 Typical roof and gutter juntion
HOC-027 Notched board around window head, sill
HOC-028 End of wall to masonry wall juntion
HOC-029 Typical Nu Wall fascia to soffit
HOC-029b Typical Nu Wall fascia to soffit option 2
HOC-030 Typical Nu Wall to fascia to soffit to wall
HOC-031 Typical garage door head, jamb (timber)
HOC-031b Typical garage door head,jamb (NuWall)
HOC-032 Typical internal corner brick wall junction
HOC-033 Typical external corner brick wall junction
HOC-034 Typical horizontal brick wall junction
HOC-035 Typical vertical brick wall junction
HOC-036 Typical masonry wall junction
HOC-037 Typical masonry block external junction
HOC-038 Typical masonry block internal junction
HOC-039 Typical irregular ext corner flashing
HOC-040 Typical irregular int corner flashing
HOC-041 Typical irregular corner flashings
Complete Vertical Direct Fix (VDF) Set
ALL PDF
VDF-001 Typical installation timber frame
VDF-002 Typical base channel fixing
VDF-003 Typical base channel over timber floor
VDF-004 Base channel over waterproof deck
VDF-004b Base channel over concrete slab
VDF-005 Pre-Fabricated 90° base channel corner
VDF-006 Ext. corner using NC107X, NC109X
VDF-007 Typical external 90 deg corner
VDF-008 Int. 90­° corner using NC107X, NC109X
VDF-009 Typical inter storey or horizontal joint
VDF-010 Typical sill section using NC247, NC248
VDF-011 Typical jamb section using NC247, NC248
VDF-012 Typical jamb section using negative filler
VDF-013 Typical head section
VDF-014 Soaker installation to window jamb
VDF-015 Typical head flashing tabbed end detail
VDF-016a Typical soffit trim
VDF-016b Typical raking soffit
VDF-016c Typical inverse raking soffit
VDF-017 Typical pipe penetration
VDF-018 Typical apron roof to wall junction
VDF-019 Typical parapet to wall
VDF-020 Typical deck to wall junction
VDF-021 Typical roof and gutter to wall junction
VDF-022 Notching board around window jamb
VDF-023 Ripped board to end of wall junction
VDF-024 Typical NW fascia to soffit
VDF-025 NW to fascia, soffit, wall with alternative
VDF-026 Garage door head jamb with timber reveal
VDF-026b Garage door head jamb with NW reveal
VDF-027 Typical NW brick internal corner
VDF-028 Typical NW to brick external corner
VDF-029 Typical NW to brick horizontal junction
VDF-030 Typical NW to brick vertical junction
VDF-031 NW to concrete masonry vertical junction
VDF-032 NW to concrete masonry external corner
VDF-033 NW to concrete masonry internal corner
Complete Standing Seam (SS200) Set
ALL PDF
SS200-001Typical installation base channel opt 1
SS200-002 Typical installation base channel opt 2
SS200-003 Typical inter storey joint - option 1
SS200-004 Typical inter storey joint - option 2
SS200-005_Typical_window_head_section
SS200-006 Typical jamb section-NC247, NC248
SS200-007 Typical sill section-NC247,NC248
SS200-008 Typical soffit trim option 1a
SS200-009 Typical soffit-trim option 1b (notched)
SS200-010 Typical raking soffit opt 2a
SS200-011 Typical raking soffit opt 2b (notched)
SS200-012 Typical inverse raking soffit opt 3a
SS200-013 Typical inverse raking soffit opt 3b (notched)
SS200-014 Typical garage door head NW reveal
SS200-015 External 90 deg corner using NC107X, NC109X
SS200-016 Internal 90 deg corner using NC107X, NC109X
SS200-017 SS200 and Mono 200 combination
Complete Board and Ancillary Profiles Set
Nu Wall Board profiles
Nu Wall Ancillary profiles
Complete Supplementary Details Set
Window setout details
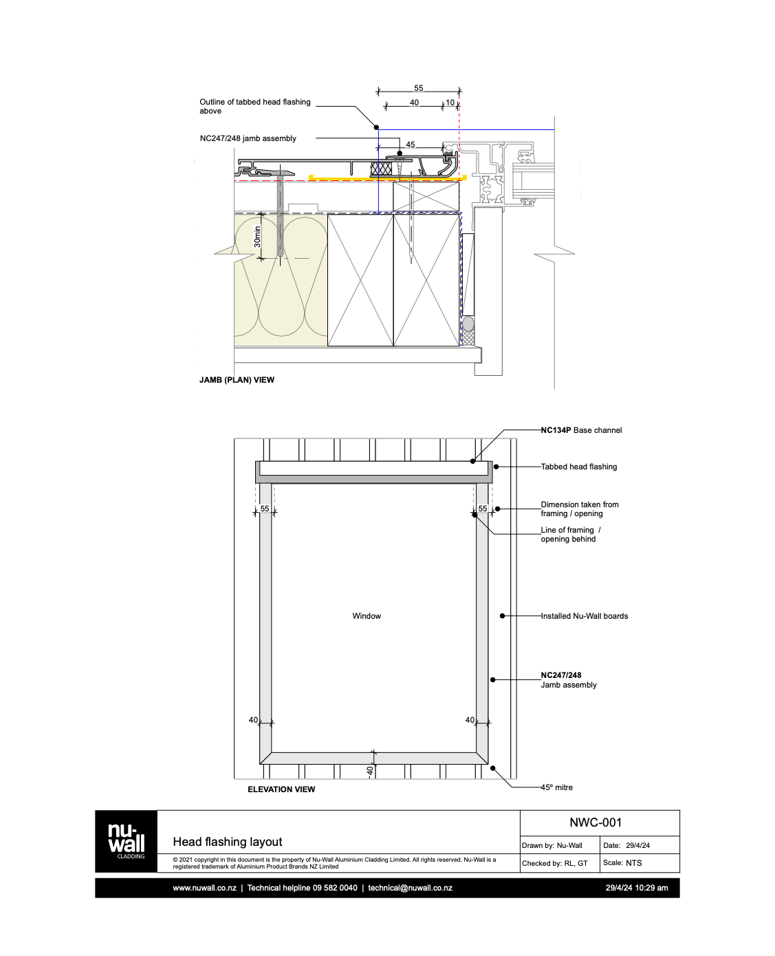
NWC-001 Head to jamb flashing layout
NWC-002 Nu-Wall Board Profiles
NWC-003 Nu-Wall Ancillary Profiles
NWC-004 External Corner junction to timber
NWC-005 Internal Corner junction to Timber
NWC-006 E70 Vertical Maintenance Joint
NWC-007 Mono50 Vertical Maintenance Joint
NWC-008 Joinery Set Out
NWC-009 LAG bolt installation
Legacy VOC Meter box head
Legacy VOC Meter box jamb
Legacy VOC Meter box Sill
×
Mouse Left
ROTATE VIDEO
Mouse Right
MOVE VIDEO
Mouse Roller
ZOOM VIDEO

We use cookies to enhance your experience on our site. By continuing to use the site, you consent to our use of cookies.